Earlier this month, the Ministry of Business, Innovation and Employment (MBIE) Building Performance team released a detailed checklist of proposed conditions for constructing small standalone dwellings, commonly referred to as granny flats, without needing a building consent. This exemption is anticipated to take effect in early 2026, marking a significant shift in how small, self-contained homes can be delivered across Aotearoa.
To qualify, such a small size dwelling must meet a comprehensive set of conditions designed to ensure safety, simplicity, and full compliance with the New Zealand Building Code. These conditions and the proposed building consent exemption for small standalone dwellings are currently before parliament for consideration.
The current scope of proposed conditions is as flows:

Design & Dimensions
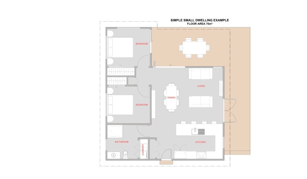
🏠 Detached (‘standalone’), single-storey, and under 70m² in floor area
🏠 Floor level no more than 1m above ground, total building height no more than 4m above ground level
🏠 Be offset at least 2 metres away from other buildings or property boundaries
Construction Standards
🏠 Concrete slab or timber floor options. Geotechnical report for foundation design will be required.
🏠 Walls & roof built with lightweight framing (timber or light steel)
🏠 Incorporate lightweight roof and cladding materials (less than 220kg/m²) such as sheet metal, timber weatherboards, plywood, etc.
🏠 Floor / walls & roof insulted to current standards along with external windows & doors (may require a insulation compliance report)
🏠 Basic plumbing and drainage only, in line with NZBC Acceptable Solutions for clauses E1 and G12. Plumbing and drainage systems must connect to network utility operator services (NUOs) where available. Where NUOs are not available, onsite water systems are exempt from requiring a building consent but will likely require a certified wastewater treatment & disposal design completed by a wastewater engineer.
Essential Services
⚡ Interconnected smoke alarms (important new smoke detector rules as to alarm types & positioning)
⚡ Independent electricity and gas supply (if applicable such as solar or LPG bottles)
⚡ Electric or gas heating
⚡ Level-entry showers only permitted once a licence class is established (waterproofing membrane related)
Professional Requirements
🛠️ All work must be done or supervised by Licensed Building Practitioners (LBPs) and certified plumbers, gasfitters, drainlayers, and electricians
🛠️ Records of Work, Certificates of Work, and energy work certificates will still be required
Council Notification
📋 Councils must be notified both before construction (via a PIM) and after completion
📋 Homeowners must submit detailed plans post-build, including any variations
📋 Councils can advise if a proposal is likely to meet exemption criteria, but this is not an approval process
Important Caveats:
📋Building on land with natural hazards may still require a building consent
📋 If any exemption condition is not met, a full consent is required
📋 This exemption will not apply to any work already underway
📋 Further changes to the exemption may be possible throughout this process as it is finalised & ratified throughout the remainder of this year. The MBIE will also confirm the scope / scale of construction information must be contained within plans presented to Council and if a Design LBP is required to produce these drawings.
At Horizon, we welcome changes that simplify the delivery of much-needed housing, especially when they maintain robust compliance and safety standards. Our architectural team has excellent experience in understanding how to spatially layout the various room spaces that can practically occur within a 70m2 floor area ensuring a comfortable & functional living environment is provided. A strong understanding of current construction material options & their associated costs will greatly assist budget focused projects to be achieved in a both a stylish & cost-effective manner.
The architectural team can manage all proposed Council requirements be it obtaining a PIM report or preparing a suitable simple set of plan drawings for the builder / contractors to work from & then be submitted to Council as is require once construction is completed. In conjunction with our survey team, a suitable master concept plan can be established to ensure the small dwelling is located in the most suitable position onsite to maximise sunlight warmth along with integrate practically with other buildings that may already exist or are planned for the future.
Want to explore your options for a small dwelling on your property? Call our Architectural Design Manager Frank Stanton to discuss your options on creating a small dwelling that is both compliant and fit-for-purpose.
